Pasywna hala produkcyjna – ELWIZ S.A.

Zakres prac:

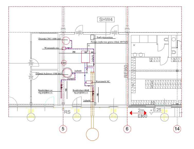
Wykonanie technologii pompy ciepła wraz z dolnym źródłem i odzyskiem ciepła z kompresora w systemie Zaprojektuj i Wybuduj

Lokalizacja:

Świnica, ul. Obwodowa 11

Inwestor:

ELWIZ S.A.

Rok realizacji:

2013

Nadzór merytoryczny:

Gunter Szlagowski, prezes Polskiego Instytutu Budownictwa Pasywnego i Energii Odnawialnej

Wyzwanie

Firma ELWIZ S.A., producent energooszczędnych okien z PCV, postawiła sobie ambitny cel: wybudować pierwszą w Polsce pasywną halę produkcyjną spełniającą restrykcyjne normy Instytutu Budownictwa Pasywnego (PHI) z Darmstadt. Kluczowe wyzwania obejmowały ograniczenie zapotrzebowania na energię, zapewnienie komfortu pracy oraz osiągnięcie certyfikatu pasywności – co w 2013 roku było absolutnym precedensem w skali kraju.

 

Zastosowane rozwiązania

W projekcie wdrożono szereg zaawansowanych technologii energooszczędnych:

  • Gruntowa pompa ciepła z  odwiertami pionowymi, zintegrowana z buforem ciepła i zasobnikiem CWU,

  • Ogrzewanie podłogowe w całym obiekcie, zapewniające równomierną dystrybucję ciepła i chłodu,

  • Wentylacja mechaniczna nawiewno-wywiewna z odzyskiem ciepła (rekuperacja),

  • Strefowe i pogodowe sterowanie systemem grzewczym, dostosowujące parametry pracy do realnych potrzeb,

  • Bardzo dobra izolacja cieplna oraz szczelność budynku, niezbędne do spełnienia norm PHI,

  • Indywidualne opomiarowanie zużycia energii i ciepłej wody użytkowej.

 

Efekty

  • Powstała pierwsza w Polsce certyfikowana hala pasywna, zatwierdzona przez Instytut Budownictwa Pasywnego w Darmstadt,

  • Budynek zużywa kilkukrotnie mniej energii niż typowa hala przemysłowa,

  • Znacząca redukcja emisji CO₂ oraz kosztów eksploatacyjnych,

  • Wysoki komfort pracy dzięki optymalnej temperaturze i jakości powietrza wewnątrz hali,

  • Projekt wyznaczył nowy standard ekologicznego budownictwa przemysłowego w Polsce.

 

Technologie i parametry

  • Pompa ciepła: gruntowa,

  • System grzewczo-chłodzący: ogrzewanie i chłodzenie podłogowe NC powiązane z odzyskiem ciepła z kompresora,

  • Wentylacja: z rekuperacją,

  • Sterowanie: strefowe, pogodowe,

  • Izolacja i szczelność: standard pasywny PHI.

 

Wnioski

Realizacja hali ELWIZ S.A. to kamień milowy w historii budownictwa pasywnego w Polsce. Dzięki innowacyjnemu podejściu inwestora oraz ścisłemu nadzorowi merytorycznemu Guntera Szlagowskiego, powstał obiekt, który łączy funkcjonalność przemysłową z najwyższymi standardami efektywności energetycznej.

To projekt, który udowadnia, że przemysł również może być częścią zielonej transformacji.